Trader Joes Shopping Cart
Trader Joes Shopping Cart
Overview: I designed and fabricated a friction-fit shopping cart to hold my new watch! Through this project, I familiarized myself with CAD, laser-cutting, tolerances, and DFA.
Overview: I designed and fabricated a friction-fit shopping cart to hold my new watch! Through this project, I familiarized myself with CAD, laser-cutting, tolerances, and DFA.
Role: Individual Project
Responsibilities: Design, prototype, and manufacture final product
Skills: CAD, Rapid Prototyping, Tolerances, Laser Cutting, DFA, 2D Engineering Drawings
Role: Individual Project
Responsibilities: Design, prototype, and manufacture final product
Skills: CAD, Rapid Prototyping, Tolerances, Laser Cutting, DFA, 2D Engineering Drawings



The Challenge:
Without adhesives and only one sheet of wood, create at structurally sound container that will withstand tesing.
The Challenge:
Without adhesives and only one sheet of wood, create at structurally sound container that will withstand tesing.
Action:
Action:
Concept Sketches
Originally inspired by car hoods!
To avoid adhesives, I decided to use friction fits.
Focused on DFA because sliding each wall in would require a specific order of assembly.
Considered integrating functionality of slots with aesthetics.

CAD Model
I wanted a more dynamic design -> added wheels and made a shopping cart!
Used parameters to ensure walls fit together.
Applied joints to visualize assembly.

Laser Cutting
I uploaded my design as a DXF file to Adobe Illustrator and added a Trader Joes engraving.
Cut my piece in the laser cutter!

Low-Fidelity Prototype
I prototyped with cardboard and tape.
Realized it would be easiest to assembly if the base piece had all tabs and the sides had all slots.
I learned that a quick prototype really helps to see proportions of a design, which help intuit possible failure or design issues.

Tolerance Testing
Created test cuts to find tolerance ranges for my friction fits.
These compensate for kerf from laser cutting.
Adjusted parameters on CAD to match test cuts.
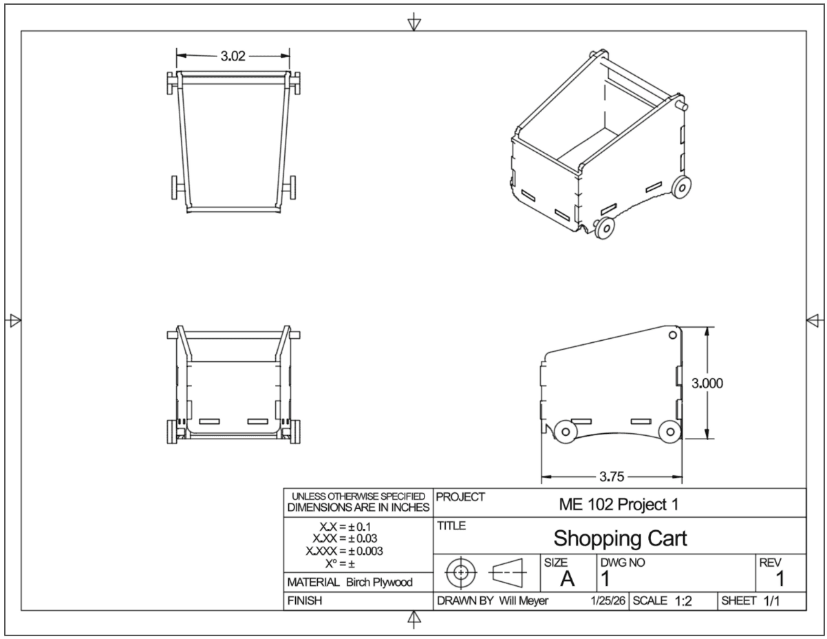
Final Product
Moment of truth… the pieces FIT!
Finally created a 2D engineering drawing.
Concept Sketches
Originally inspired by car hoods!
To avoid adhesives, I decided to use friction fits.
Focused on DFA because sliding each wall in would require a specific order of assembly.
Considered integrating functionality of slots with aesthetics.


Low-Fidelity Prototype
I prototyped with cardboard and tape.
Realized it would be easiest to assembly if the base piece had all tabs and the sides had all slots.
I learned that a quick prototype really helps to see proportions of a design, which help intuit possible failure or design issues.
CAD Model
I wanted a more dynamic design -> added wheels and made a shopping cart!
Used parameters to ensure walls fit together.
Applied joints to visualize assembly.


Tolerance Testing
Created test cuts to find tolerance ranges for my friction fits.
These compensate for kerf from laser cutting.
Adjusted parameters on CAD to match test cuts.
Laser Cutting
I uploaded my design as a DXF file to Adobe Illustrator and added a Trader Joes engraving.
Cut my piece in the laser cutter!
Final Product
Moment of truth… the pieces FIT!
Finally created a 2D engineering drawing.
Concept Sketches
Originally inspired by car hoods!
To avoid adhesives, I decided to use friction fits.
Focused on DFA because sliding each wall in would require a specific order of assembly.
Considered integrating functionality of slots with aesthetics.


Low-Fidelity Prototype
I prototyped with cardboard and tape.
Realized it would be easiest to assembly if the base piece had all tabs and the sides had all slots.
I learned that a quick prototype really helps to see proportions of a design, which help intuit possible failure or design issues.
CAD Model
I wanted a more dynamic design -> added wheels and made a shopping cart!
Used parameters to ensure walls fit together.
Applied joints to visualize assembly.


Tolerance Testing
Created test cuts to find tolerance ranges for my friction fits.
These compensate for kerf from laser cutting.
Adjusted parameters on CAD to match test cuts.
Laser Cutting
I uploaded my design as a DXF file to Adobe Illustrator and added a Trader Joes engraving.
Cut my piece in the laser cutter!
Final Product
Moment of truth… the pieces FIT!
Finally created a 2D engineering drawing.


Results:
I created a laser cut a functional moving container that could fit my watch.
I further developed my skills in prototyping and product realization through integration of tolerances and DFA.
Results:
I created a laser cut a functional moving container that could fit my watch.
I further developed my skills in prototyping and product realization through integration of tolerances and DFA.

